Foto’s
{{ product.images.length }}
Plattegrond
{{ product.plans.length }}
360° foto's {{ product.panoramas.length }}
Video’s {{ product.videos.length }}
Kaarten
Alle media
Woonhuis te koop Gondel 31 58 Lelystad
€ 248.000 k.k.
Verkocht
Omschrijving
Wij willen je vragen om bij voorkeur DIGITAAL (via Funda of onze eigen website) een bezichtiging aan te vragen. Vervolgens nemen wij contact met je op om een afspraak in te plannen. Dank voor de medewerking.
AB wonen makelaars biedt aan: Gondel 31 58 te Lelystad.
In de groene-, kindvriendelijke- en centraal gelegen woonwijk de 'Gondel' is deze ruime tussenwoning gelegen, de woning heeft maar liefst 5 slaapkamers, een woonoppervlakte van 128,6m2 en ligt in een rustig hofje nabij het "Bultpark". Gelegen op een perceel van 173m² eigen grond. Daarnaast is op een steenworp afstand gelegen een basisschool, diverse sportfaciliteiten (voetbal en tennis), en in de nabije omgeving is een buurtwinkelcentrum en het stadscentrum van Lelystad met het Centraal Station is op fietsafstand.
Op zoek naar een ruime woning die je nog helemaal naar je eigen zin kunt maken ? Het kan in dit huis!
“Nu bieden vanaf € 248.000,-. De gestelde vraagprijs betreft een "bieden vanaf prijs". Biedingen vanaf € 248.000,- zullen door verkoper in behandeling genomen worden.”
Begane grond
Je betreedt de woning via de hal. Hier is ook de toiletruimte met fonteintje, meterkast en trapopgang. Aansluitend aan de woning is er een ruime berging. De woonkamer is licht door de ramen aan voor- en achterzijde en de tuin bereik je via een loopdeur. Er is een handige trapkast waar je met gemak je voorraad en de stofzuiger in kwijt kunt.
Aan de voorzijde bevindt zich de open keuken, deze is in 2017 nieuw geplaatst. De keuken heeft een rechte opstelling en is voorzien van moderne inbouwapparatuur zoals een gaskookplaat, oven/combimagnetron, afzuigkap en koelkast.
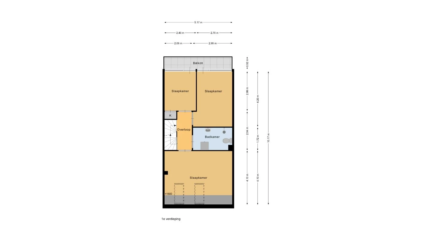
Eerste verdieping
De eerste verdieping beschikt over 3 slaapkamers en de badkamer. De slaapkamer aan de voorzijde ligt over de gehele breedte van de woning en is voorzien van 2 dakramen. De beide slaapkamers aan de achterzijde hebben toegang tot het balkon.
De badkamer is verouderd maar functioneel, volledig betegeld met witte tegels en voorzien van toilet, wastafel en douche. De wasmachine aansluiting zit in de badkamer en de wasmachine blijft achter in de woning.
Tweede verdieping
Via een vaste trap bereik je de overloop, hier hangt de cv ketel (huur). Er is een ruime berging voorzien van een Velux dakraam, verder zijn er 2 ruime slaapkamers, met bergruimte achter de knieschotten.
Tuin en berging
De tuin is gelegen op het oosten en ligt beschut. Er is een vlonderterras aansluitend aan het huis en in het achterste gedeelte kun je een terras aanleggen of naar eigen inzicht indelen. De berging aan de voorzijde is aangebouwd en voorzien van elektra. Voldoende ruimte om fietsen te stallen.
Bijzonderheden:
- bouwjaar 1979
- woonoppervlakte: 128,6m2
- perceeloppervlakte 173m2 eigen grond
- huur cv ketel, €26,04,- per maand
- tuin op het oosten
- 5 slaapkamers
- gelegen aan hofje
- aan autoluwe straat
- alle voorzieningen op korte afstand
- openbaar vervoer binnen handbereik
- energielabel: C
- aanvaarding: kan spoedig
- er wordt een niet-bewoningsclausule opgenomen
- notaris keuze koper, Lelystad
Disclaimer:
Deze informatie is met zorg samengesteld en wordt u vrijblijvend aangeboden. Over de juistheid en/of volledigheid ervan kunnen wij echter geen aansprakelijkheid aanvaarden.
AB wonen makelaars biedt aan: Gondel 31 58 te Lelystad.
In de groene-, kindvriendelijke- en centraal gelegen woonwijk de 'Gondel' is deze ruime tussenwoning gelegen, de woning heeft maar liefst 5 slaapkamers, een woonoppervlakte van 128,6m2 en ligt in een rustig hofje nabij het "Bultpark". Gelegen op een perceel van 173m² eigen grond. Daarnaast is op een steenworp afstand gelegen een basisschool, diverse sportfaciliteiten (voetbal en tennis), en in de nabije omgeving is een buurtwinkelcentrum en het stadscentrum van Lelystad met het Centraal Station is op fietsafstand.
Op zoek naar een ruime woning die je nog helemaal naar je eigen zin kunt maken ? Het kan in dit huis!
“Nu bieden vanaf € 248.000,-. De gestelde vraagprijs betreft een "bieden vanaf prijs". Biedingen vanaf € 248.000,- zullen door verkoper in behandeling genomen worden.”
Begane grond
Je betreedt de woning via de hal. Hier is ook de toiletruimte met fonteintje, meterkast en trapopgang. Aansluitend aan de woning is er een ruime berging. De woonkamer is licht door de ramen aan voor- en achterzijde en de tuin bereik je via een loopdeur. Er is een handige trapkast waar je met gemak je voorraad en de stofzuiger in kwijt kunt.
Aan de voorzijde bevindt zich de open keuken, deze is in 2017 nieuw geplaatst. De keuken heeft een rechte opstelling en is voorzien van moderne inbouwapparatuur zoals een gaskookplaat, oven/combimagnetron, afzuigkap en koelkast.
Eerste verdieping
De eerste verdieping beschikt over 3 slaapkamers en de badkamer. De slaapkamer aan de voorzijde ligt over de gehele breedte van de woning en is voorzien van 2 dakramen. De beide slaapkamers aan de achterzijde hebben toegang tot het balkon.
De badkamer is verouderd maar functioneel, volledig betegeld met witte tegels en voorzien van toilet, wastafel en douche. De wasmachine aansluiting zit in de badkamer en de wasmachine blijft achter in de woning.
Tweede verdieping
Via een vaste trap bereik je de overloop, hier hangt de cv ketel (huur). Er is een ruime berging voorzien van een Velux dakraam, verder zijn er 2 ruime slaapkamers, met bergruimte achter de knieschotten.
Tuin en berging
De tuin is gelegen op het oosten en ligt beschut. Er is een vlonderterras aansluitend aan het huis en in het achterste gedeelte kun je een terras aanleggen of naar eigen inzicht indelen. De berging aan de voorzijde is aangebouwd en voorzien van elektra. Voldoende ruimte om fietsen te stallen.
Bijzonderheden:
- bouwjaar 1979
- woonoppervlakte: 128,6m2
- perceeloppervlakte 173m2 eigen grond
- huur cv ketel, €26,04,- per maand
- tuin op het oosten
- 5 slaapkamers
- gelegen aan hofje
- aan autoluwe straat
- alle voorzieningen op korte afstand
- openbaar vervoer binnen handbereik
- energielabel: C
- aanvaarding: kan spoedig
- er wordt een niet-bewoningsclausule opgenomen
- notaris keuze koper, Lelystad
Disclaimer:
Deze informatie is met zorg samengesteld en wordt u vrijblijvend aangeboden. Over de juistheid en/of volledigheid ervan kunnen wij echter geen aansprakelijkheid aanvaarden.
+ Lees meer
- Lees minder
Bouw: {{ product.build_year }}
Bouw: {{ product.build_period.start }} - {{ product.build_period.end }}
Woonhuis
, Eengezinswoning
{{ product.rooms }} Kamers
{{ product.bedrooms }} Slaapkamers
Woonruimte: {{ product.living_space }} m²
Perceel: {{ product.plot_surface }} m²
Energielabel: {{ product.energy_class }}
Energie index: {{ product.energy_index }}
Kenmerken
{{ field.label }}
{{ field.value }}
+ Lees meer
{{ field.label }}
{{ field.value }}
- Lees minder
{{ product.company.name }}
Contact opnemen
{{ product.company.phone.replace('-', ' ').substr(0, 7) }}...
{{ product.company.phone.replace('-', ' ') }}
Delen:
Foto’s van Gondel 31 58 8243 CX Lelystad
Datum


































