Foto’s
{{ product.images.length }}
Plattegrond
{{ product.plans.length }}
360° foto's {{ product.panoramas.length }}
Video’s {{ product.videos.length }}
Kaarten
Alle media
Woonhuis te koop Vecht 29 Lelystad
€ 185.000 k.k.
Verkocht
Omschrijving
AB wonen makelaars biedt aan: Vecht 29 Lelystad. Een leuke drie-laagse hoekwoning met vrijstaande stenen berging aan de voorzijde en een groot dakterras op het westen. Gelegen aan de buitenrand en met de achtertuin op het westen biedt deze woning veel ruimte voor een betaalbare prijs. De woning is geheel voorzien van kunststof kozijnen met horren. Er is ruim voldoende groen rondom de woning en aan de voorzijde zijn voldoende parkeerplaatsen in het woonhofje. Op loop- en fietsafstand van supermarkten, scholen, gezondheidscentrum, Zuigerplasbos en van ’t Lelycentre; leuk winkelcentrum met gevarieerd winkelaanbod.
"Nu bieden vanaf € 185.000,- k.k.. De gestelde vraagprijs betreft een "bieden vanaf prijs". Biedingen vanaf € 185.000,- k.k. zullen door verkoper in behandeling genomen worden".
Indeling
Begane grond:
entree, ruime hal, meterkast, toilet met fonteintje, toegang tot de lichte woonkamer, aan de voorzijde van de woning gelegen open keuken met granieten keukenblad en inbouwapparatuur. Vaste trap naar de eerste verdieping.
Eerste verdieping:
Overloop, twee ruime slaapkamers, badkamer met een dichte douche, wastafel en een tweede toilet. Vaste trap naar de tweede verdieping. Gehele verdieping is voorzien van zeil.
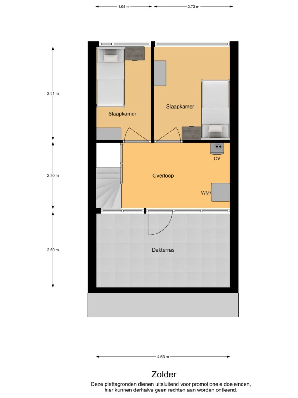
Tweede verdieping:
Overloop, toegang tot het dakterras, opstelling CV en wasmachineaansluiting. Ook op deze verdieping zijn er twee slaapkamers. Deze gehele verdieping is voorzien van zeil.
Tuin:
De achtertuin is gelegen op het westen; ’s ochtends schaduwrijk en de rest van de dag zonnig.
"Nu bieden vanaf € 185.000,- k.k.. De gestelde vraagprijs betreft een "bieden vanaf prijs". Biedingen vanaf € 185.000,- k.k. zullen door verkoper in behandeling genomen worden".
Binnenkijken? Dat kan! Maak dan een persoonlijke afspraak en kom langs voor een bezichtiging!
Hoe te bezichtigen:
- uitsluitend volgens de RIVM-richtlijnen
- aparte persoonlijke afspraken
- minimaal anderhalve meter afstand houden
- niets aanraken, alleen kijken
- mogelijke ziekteverschijnselen? Dan geen afspraak
Bijzonderheden:
- Bouwjaar 1973
- Woonoppervlakte: 111 m2
- Op loopafstand van Zuigerplasbos
- Woonhofje met royaal opgezette parkeerplaatsen
- Openbaar vervoer binnen handbereik; bushalte naast de woning
- Geheel voorzien van kunststof kozijnen en dubbele beglazing
- De woning heeft een traplift
- Groot dakterras
- Aan de voor en achterkant van de woning zijn buitenkranen
- Aanvaarding in overleg
+ Lees meer
- Lees minder
Bouw: {{ product.build_year }}
Bouw: {{ product.build_period.start }} - {{ product.build_period.end }}
Woonhuis
, Eengezinswoning
{{ product.rooms }} Kamers
{{ product.bedrooms }} Slaapkamers
Woonruimte: {{ product.living_space }} m²
Perceel: {{ product.plot_surface }} m²
Energielabel: {{ product.energy_class }}
Energie index: {{ product.energy_index }}
Kenmerken
{{ field.label }}
{{ field.value }}
+ Lees meer
{{ field.label }}
{{ field.value }}
- Lees minder
{{ product.company.name }}
Contact opnemen
{{ product.company.phone.replace('-', ' ').substr(0, 7) }}...
{{ product.company.phone.replace('-', ' ') }}
Delen:
Foto’s van Vecht 29 8223 DC Lelystad
Datum



































