Foto’s
{{ product.images.length }}
Plattegrond
{{ product.plans.length }}
360° foto's {{ product.panoramas.length }}
Video’s {{ product.videos.length }}
Kaarten
Alle media
Woonhuis te koop Punter 32 19 * Lelystad
€ 215.000 k.k.
Verkocht
Omschrijving
Let op; de getoonde prijs betreft een "bieden vanaf prijs". Biedingen vanaf € 215.000 K.K. worden door de eigenaar in behandeling genomen.
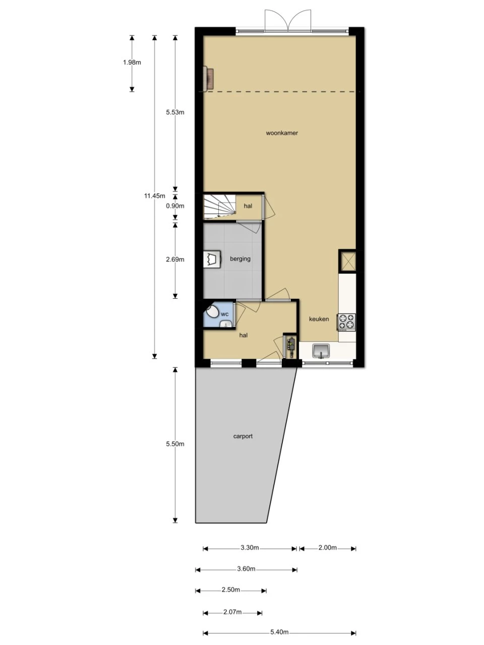
Grote eengezinswoning met carport. Gelegen in het mooiste gedeelte van de Punter met veel groen, singel, rust en ruimte om de hoek! De afwezigheid van directe achterburen geeft ook vooral in de achtertuin een prettig gevoel van vrijheid. Deze woningen zijn meer dan 11 meter diep; dus echt prettig ruim.
Indeling: entree, hal, net toilet, toegang tot handige berging/wasmachineruimte. Woonkamer, royaal bemeten en met leuk zicht op de tuin en het openbare groen/bomenrij daarachter. De open keuken (2019) bevindt zich aan de voorzijde van het huis; ruime opstelling met 5pits gasfornuis, vaatwasser en Amerikaanse koelkast met waterdispencer.
Op de eerste verdieping 3 slaapkamers waarvan één fraaie slaapkamer over de gehele breedte van het huis met praktische kastenwand. Badkamer met dubbele wastafel, bad/douchecombinatie en tweede toilet.
De tweede etage wordt bereikt via vaste trap. Praktische voorzolder met combiketelopstelling (huur, 2017) en goede vierde slaapkamer.
Totaal 166m2 eigen grond met eigen parkeerplaats/carport aan de voorzijde en vriendelijke achtertuin. Dit gedeelte van de woonwijk heeft veel parkeerruimte en fraai stuk groen/waterpartij letterlijk om de hoek, fijn wonen! Aanvaarding in overleg.
Plan snel een bezichtiging!
Grote eengezinswoning met carport. Gelegen in het mooiste gedeelte van de Punter met veel groen, singel, rust en ruimte om de hoek! De afwezigheid van directe achterburen geeft ook vooral in de achtertuin een prettig gevoel van vrijheid. Deze woningen zijn meer dan 11 meter diep; dus echt prettig ruim.
Indeling: entree, hal, net toilet, toegang tot handige berging/wasmachineruimte. Woonkamer, royaal bemeten en met leuk zicht op de tuin en het openbare groen/bomenrij daarachter. De open keuken (2019) bevindt zich aan de voorzijde van het huis; ruime opstelling met 5pits gasfornuis, vaatwasser en Amerikaanse koelkast met waterdispencer.
Op de eerste verdieping 3 slaapkamers waarvan één fraaie slaapkamer over de gehele breedte van het huis met praktische kastenwand. Badkamer met dubbele wastafel, bad/douchecombinatie en tweede toilet.
De tweede etage wordt bereikt via vaste trap. Praktische voorzolder met combiketelopstelling (huur, 2017) en goede vierde slaapkamer.
Totaal 166m2 eigen grond met eigen parkeerplaats/carport aan de voorzijde en vriendelijke achtertuin. Dit gedeelte van de woonwijk heeft veel parkeerruimte en fraai stuk groen/waterpartij letterlijk om de hoek, fijn wonen! Aanvaarding in overleg.
Plan snel een bezichtiging!
+ Lees meer
- Lees minder
Bouw: {{ product.build_year }}
Bouw: {{ product.build_period.start }} - {{ product.build_period.end }}
Woonhuis
, Eengezinswoning
{{ product.rooms }} Kamers
{{ product.bedrooms }} Slaapkamers
Woonruimte: {{ product.living_space }} m²
Perceel: {{ product.plot_surface }} m²
Energielabel: {{ product.energy_class }}
Energie index: {{ product.energy_index }}
Kenmerken
{{ field.label }}
{{ field.value }}
+ Lees meer
{{ field.label }}
{{ field.value }}
- Lees minder
{{ product.company.name }}
Contact opnemen
{{ product.company.phone.replace('-', ' ').substr(0, 7) }}...
{{ product.company.phone.replace('-', ' ') }}
Delen:
Foto’s van Punter 32 19 * 8242 EG Lelystad
Datum

























