Foto’s
{{ product.images.length }}
Plattegrond
{{ product.plans.length }}
360° foto's {{ product.panoramas.length }}
Video’s {{ product.videos.length }}
Kaarten
Alle media
Woonhuis te koop Rigastraat 46 Lelystad
€ 333.000 k.k.
Verkocht
Omschrijving
AB wonen makelaars biedt aan: Rigastraat 46 te Lelystad.
Ruime tussenwoning energiezuinig, met zonnepanelen en van bouwjaar 2017. Deze woning is centraal gelegen ten opzichte van het centrum en je kunt er zo in! Het woonoppervlakte is totaal 100m2. De tuingerichte woonkamer is licht en de luxe open keuken is voorzien van alle gemakken. De woning ligt in het ruim opgezette wijk “Hanzepark” op een kavel van 135m2 eigen grond. Voldoende voorzieningen in de directe omgeving zoals bushalte, winkelcentrum, scholen, en een gezondheidscentrum op korte afstand. Dichtbij het centrum van Lelystad en de uitvalsweg naar de A6 richting Almere, Amsterdam.
''Nu bieden vanaf € 333.000,- k.k. De gestelde vraagprijs betreft een 'bieden vanaf prijs''. Biedingen vanaf € 333.000,- k.k zullen door verkoper in behandeling genomen worden''.
Op zoek naar een woning dicht bij het centrum met luxe afwerking? Stuur dan een mail voor een bezichtiging.
Indeling begane grond:
Entree, ruime hal, toilet, meterkast, trapopgang naar 1ste verdieping en deur naar keuken en woonkamer. De keuken is aan de voorzijde gelegen, Modern en luxe uitgevoerd met een hoekje waar je gezellig aan kan schuiven. Verder is de keuken onder meer voorzien van magnetron, oven, koelkast, vaatwasser, afzuigkap en een kookplaat. De tuingerichte woonkamer is heerlijk ruim opgezet en is voorzien van vloerverwarming. De TV en openhaard zijn ingebouwd tevens is de woonkamer voorzien van inbouwspotjes en led verlichting. Vanuit de woonkamer heeft u direct toegang via de schuifpui en loopdeur tot de rustig gelegen tuin. Deze tuin is ook benaderbaar via de achterkant van de woning. Achterin staat een houten berging, voor opslag e.d.
Eerste verdieping:
Hier zijn drie slaapkamers en een badkamer voorzien van douche, toilet en wastafelmeubel. Ook deze verdieping is voorzien van vloerverwarming. De badkamer is in lichte kleuren uitgevoerd en een raam zorgt voor natuurlijk licht en ventilatie.
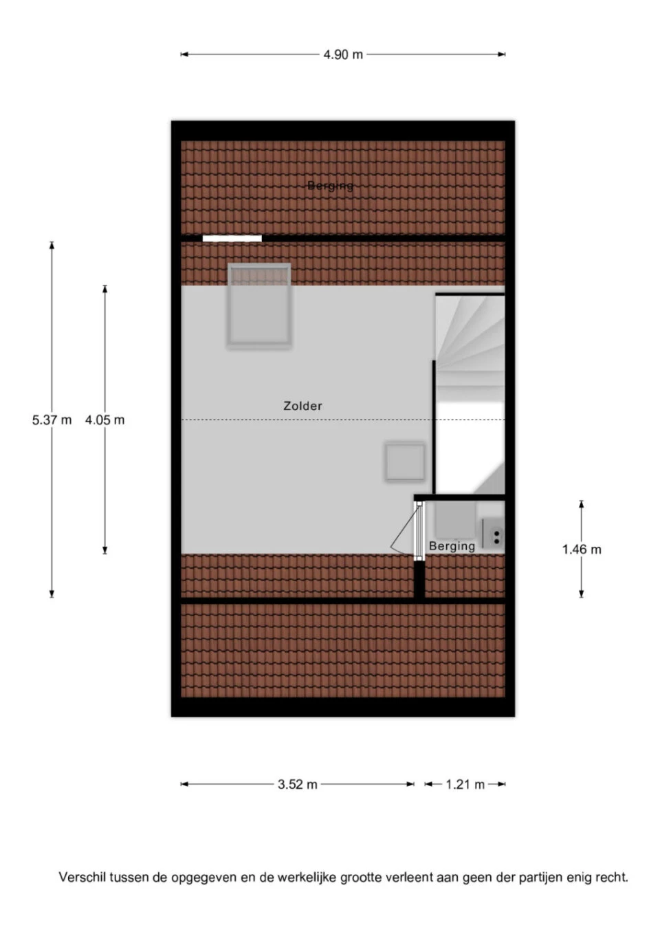
Tweede verdieping:
Op dit moment is de zolderverdieping open maar er is eenvoudig een volwaardige afgesloten slaapkamer van te maken. De ruimte is netjes afgewerkt en voorzien van een dakraam. Tevens is op deze verdieping een berging gemaakt voor de CV ketel en de wasmachine.
Tuin
De tuin is onderhoudsvrij aangelegd met een border. De houten berging is voorzien van elektra en ideaal voor het stallen van fietsen en opbergen van je tuinkussens. De tuin is bereikbaar via de achteringang.
Binnenkijken? Dat kan! Maak dan snel een afspraak voor een bezichtiging en kom de sfeer van het huis proeven!
Algemeen:
- Woonoppervlakte 100m2
- Perceeloppervlakte 135 m2
- Energielabel A
- vloerverwarming
- luxe afwerking
- open haard
- 3 royale slaapkamers
- Voldoende parkeergelegenheid op en rond de woning
- Aanvaarding: zo spoedig mogelijk
- Overdracht via notariskantoor FKJ te Lelystad
Hoe te bezichtigen:
-uitsluitend volgens de RIVM-richtlijnen
-aparte persoonlijke afspraken
-minimaal anderhalve meter afstand houden
-niets aanraken, alleen kijken
-mogelijke ziekteverschijnselen? Dan geen afspraak
Disclaimer
Deze informatie is met zorg samengesteld en wordt u vrijblijvend aangeboden.
Over de juistheid en/of volledigheid ervan kunnen wij echter geen aansprakelijkheid aanvaarden.
Ruime tussenwoning energiezuinig, met zonnepanelen en van bouwjaar 2017. Deze woning is centraal gelegen ten opzichte van het centrum en je kunt er zo in! Het woonoppervlakte is totaal 100m2. De tuingerichte woonkamer is licht en de luxe open keuken is voorzien van alle gemakken. De woning ligt in het ruim opgezette wijk “Hanzepark” op een kavel van 135m2 eigen grond. Voldoende voorzieningen in de directe omgeving zoals bushalte, winkelcentrum, scholen, en een gezondheidscentrum op korte afstand. Dichtbij het centrum van Lelystad en de uitvalsweg naar de A6 richting Almere, Amsterdam.
''Nu bieden vanaf € 333.000,- k.k. De gestelde vraagprijs betreft een 'bieden vanaf prijs''. Biedingen vanaf € 333.000,- k.k zullen door verkoper in behandeling genomen worden''.
Op zoek naar een woning dicht bij het centrum met luxe afwerking? Stuur dan een mail voor een bezichtiging.
Indeling begane grond:
Entree, ruime hal, toilet, meterkast, trapopgang naar 1ste verdieping en deur naar keuken en woonkamer. De keuken is aan de voorzijde gelegen, Modern en luxe uitgevoerd met een hoekje waar je gezellig aan kan schuiven. Verder is de keuken onder meer voorzien van magnetron, oven, koelkast, vaatwasser, afzuigkap en een kookplaat. De tuingerichte woonkamer is heerlijk ruim opgezet en is voorzien van vloerverwarming. De TV en openhaard zijn ingebouwd tevens is de woonkamer voorzien van inbouwspotjes en led verlichting. Vanuit de woonkamer heeft u direct toegang via de schuifpui en loopdeur tot de rustig gelegen tuin. Deze tuin is ook benaderbaar via de achterkant van de woning. Achterin staat een houten berging, voor opslag e.d.
Eerste verdieping:
Hier zijn drie slaapkamers en een badkamer voorzien van douche, toilet en wastafelmeubel. Ook deze verdieping is voorzien van vloerverwarming. De badkamer is in lichte kleuren uitgevoerd en een raam zorgt voor natuurlijk licht en ventilatie.
Tweede verdieping:
Op dit moment is de zolderverdieping open maar er is eenvoudig een volwaardige afgesloten slaapkamer van te maken. De ruimte is netjes afgewerkt en voorzien van een dakraam. Tevens is op deze verdieping een berging gemaakt voor de CV ketel en de wasmachine.
Tuin
De tuin is onderhoudsvrij aangelegd met een border. De houten berging is voorzien van elektra en ideaal voor het stallen van fietsen en opbergen van je tuinkussens. De tuin is bereikbaar via de achteringang.
Binnenkijken? Dat kan! Maak dan snel een afspraak voor een bezichtiging en kom de sfeer van het huis proeven!
Algemeen:
- Woonoppervlakte 100m2
- Perceeloppervlakte 135 m2
- Energielabel A
- vloerverwarming
- luxe afwerking
- open haard
- 3 royale slaapkamers
- Voldoende parkeergelegenheid op en rond de woning
- Aanvaarding: zo spoedig mogelijk
- Overdracht via notariskantoor FKJ te Lelystad
Hoe te bezichtigen:
-uitsluitend volgens de RIVM-richtlijnen
-aparte persoonlijke afspraken
-minimaal anderhalve meter afstand houden
-niets aanraken, alleen kijken
-mogelijke ziekteverschijnselen? Dan geen afspraak
Disclaimer
Deze informatie is met zorg samengesteld en wordt u vrijblijvend aangeboden.
Over de juistheid en/of volledigheid ervan kunnen wij echter geen aansprakelijkheid aanvaarden.
+ Lees meer
- Lees minder
Bouw: {{ product.build_year }}
Bouw: {{ product.build_period.start }} - {{ product.build_period.end }}
Woonhuis
, Eengezinswoning
{{ product.rooms }} Kamers
{{ product.bedrooms }} Slaapkamers
Woonruimte: {{ product.living_space }} m²
Perceel: {{ product.plot_surface }} m²
Energielabel: {{ product.energy_class }}
Energie index: {{ product.energy_index }}
Kenmerken
{{ field.label }}
{{ field.value }}
+ Lees meer
{{ field.label }}
{{ field.value }}
- Lees minder
{{ product.company.name }}
Contact opnemen
{{ product.company.phone.replace('-', ' ').substr(0, 7) }}...
{{ product.company.phone.replace('-', ' ') }}
Delen:
Foto’s van Rigastraat 46 8232 RS Lelystad
Datum






































