Foto’s
{{ product.images.length }}
Plattegrond
{{ product.plans.length }}
360° foto's {{ product.panoramas.length }}
Video’s {{ product.videos.length }}
Kaarten
Alle media
Woonhuis te koop Neckarstraat 27 Lelystad
€ 278.000 k.k.
Verkocht
Omschrijving
HELAAS ZIJN DE KIJKMOMENTEN VOOR DEZE WONING OP DIT MOMENT GEHEEL GEVULD. HARTELIJK DANK VOOR DE BELANGSTELLING. MOCHT U OP DE RESERVELIJST GEPLAATST WILLEN WORDEN DAN BENT U WELKOM OM ONS EEN MAIL TE STUREN OF EEN AANVRAAG TE DOEN VIA ONZE EIGEN WEBSITE OF FUNDA.
AB wonen makelaars biedt aan: Neckarstraat 27 te Lelystad.
Gelegen in de Rivierenbuurt in Lelystad met 5 slaapkamers en tuin op het zuiden. Een mooie instapklare hoekwoning met garage en een werkkamer op de begane grond. Er is een houtkachel en er zijn zonnepanelen geplaatst. De woning ligt op loop- en fietsafstand van supermarkten, scholen, diverse sportverenigingen en winkelcentrum met gevarieerd winkelaanbod. Gelegen op een perceel van 173m2.
Ruim wonen met een heerlijke tuin en thuiswerken vanuit je eigen kantoor? Het kan hier allemaal!
Wij starten de verkoop met een KIJKMOMENT OP AANMELDING op vrijdag 30 juli 2021. Het tweede KIJKMOMENT OP AANMELDING is op maandag 2 augustus 2021. U bent van harte welkom om de woning op afspraak te komen bezichtigen. U kunt zich voor het kijkmoment aanmelden via FUNDA. GELIEVE NIET TE BELLEN MAAR EEN AANVRAAG TE DOEN VIA FUNDA OF ONZE EIGEN WEBSITE!!
Bieden vanaf € 278.000,= k.k. De gestelde prijs betreft een bieden vanaf prijs. Biedingen vanaf € 278.000.,= k.k. zullen door verkopers in overweging worden genomen.
Indeling:
Begane grond
Je komt binnen in de hal en hier heb je toegang tot de werkkamer, deze is ook via een deur direct vanaf buiten te bereiken. In de hal bevindt zich de toiletruimte en de meterkast. De woonkamer is erg licht door schuifpui aan de achterzijde en heeft uitzicht op de prachtige tuin met veel privacy. In de keuken ligt leisteen op de vloer en de gehele begane grond is voorzien van een houten vloer en er is een sfeervolle houtkachel. Aan de voorzijde van de woning bevindt zich de open keuken in L-opstelling. Deze heeft natuurlijke lichtinval door de raampartij aan de voorzijde. De keuken is voorzien van een granito aanrechtblad, inbouwoven, elektrische kookplaat, afzuigkap, koel/vriescombinatie en vaatwasser. Vanuit de woonkamer kom je via de kunststof schuifpui in de groene achtertuin. De trappen zijn recent voorzien van kunststof in houtmotief.
Eerste verdieping
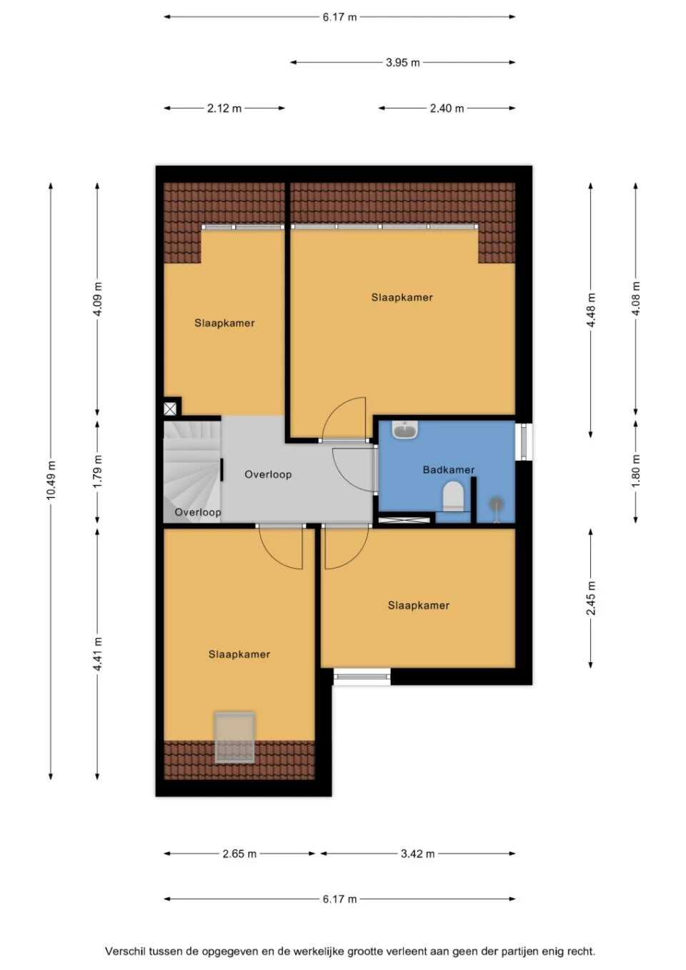
De eerste verdieping beschikt over 4 slaapkamers en een badkamer. Over de hele breedte is een dakkapel geplaatst waardoor de slaapkamers aan de tuinzijde extra ruim zijn. Op de gehele verdieping ligt een Merbauvloer. De badkamer is in 2018 compleet gerenoveerd en voorzien van vloerverwarming en kunststof verlaagd plafond en is in lichte kleurstelling uitgevoerd. Een inloopdouche met regendouche, toilet en wastafelmeubel maken de ruimte compleet.
Tweede verdieping
Zolder met overloop en de 5e slaapkamer met zijraam en extra dakraam. Op de overloop is een ruimte met aansluiting voor de wasmachine en de droger en is verder in gebruik als bergruimte. Via de deur kom je in de ruime lichte slaapkamer. Deze verdieping is netjes afgewerkt en voorzien van laminaatvloer.
Tuin, berging en garage
Vanuit de woonkamer stap je via de schuifpui in de zonnige achtertuin welke is voorzien van betegeld terras, gazon en mooie borders. De achtertuin biedt veel privacy en is gelegen op het zuiden. Er is een elektrisch zonnescherm zodat je ook een lekker plekje in de schaduw kunt vinden. Achter in de tuin staat een kunststof tuinhuis met elektra en verlichting en er is een achterom via een poort. Aan de voorzijde van de woning ligt een betegelde tuin met de garage, deze is nu opgedeeld, deels berging en deels kantoor maar kan indien gewenst weer volledig als garage worden gebruikt.
- Ruime, lichte hoekwoning.
- Ligging achterzijde op het zuiden.
- Badkamer recent 2018 met vloerverwarming en kunststof verlaagd plafond met inbouwspots.
- Nette keuken voorzien van handige carrousel, hoekkast en granito aanrechtblad.
- Grote elektrische kookplaat en brede afzuigkap met kanaal naar buiten.
- Kunststof schuifpui
- Dakkapel over gehele breedte woning
- Kunststof raam zijgevel t.b.v. badkamer
- Volledig kunststof tuinhuis met elektra en verlichting
- Stadsverwarming
- Design radiator in huiskamer
- Voorbereiding voor radiator in keuken.
- Ruime zolder met zijraam en extra dakraam
- Stenen verhoging wasmachine / droger
- Houtkachel
- Elektrisch zonnescherm
- 9 zonnepanelen 2020 eigendom
- Opgedeelde inpandige garage, deels berging deels kantoorruimte.
- Garagedeur geïsoleerd.
- Trappen recent bekleed kunststof met houtmotief
- De woning is binnen recent voorzien van nieuw wand en plafond schilderwerk.
- Rustige buurt
- Dichtbij A6
- Speeltuin in de buurt en veel groen
- Dichtbij scholen en supermarkt.
- Hout / beton schutting deels 2015 deels 2020 voorzien van poort aan de straatzijde.
- bouwjaar 1988
- energielabel B
- woonoppervlakte: 126,4m2
- perceel oppervlakte: 173m2
- oplevering: begin november 2021
- notaris keuze koper, Lelystad
Nieuwsgierig? Maak dan een persoonlijke afspraak en kom langs voor een bezichtiging!
Hoe te bezichtigen:
- uitsluitend volgens de RIVM-richtlijnen.
- maximaal met 2 personen naar de afspraak te komen.
- aparte persoonlijke afspraken.
- minimaal anderhalve meter afstand houden.
- niets aanraken, alleen kijken.
- mogelijke ziekteverschijnselen? Dan geen afspraak.
Disclaimer:
Deze informatie is met zorg samengesteld en wordt u vrijblijvend aangeboden.
Over de juistheid en/of volledigheid ervan kunnen wij echter geen aansprakelijkheid aanvaarden.
AB wonen makelaars biedt aan: Neckarstraat 27 te Lelystad.
Gelegen in de Rivierenbuurt in Lelystad met 5 slaapkamers en tuin op het zuiden. Een mooie instapklare hoekwoning met garage en een werkkamer op de begane grond. Er is een houtkachel en er zijn zonnepanelen geplaatst. De woning ligt op loop- en fietsafstand van supermarkten, scholen, diverse sportverenigingen en winkelcentrum met gevarieerd winkelaanbod. Gelegen op een perceel van 173m2.
Ruim wonen met een heerlijke tuin en thuiswerken vanuit je eigen kantoor? Het kan hier allemaal!
Wij starten de verkoop met een KIJKMOMENT OP AANMELDING op vrijdag 30 juli 2021. Het tweede KIJKMOMENT OP AANMELDING is op maandag 2 augustus 2021. U bent van harte welkom om de woning op afspraak te komen bezichtigen. U kunt zich voor het kijkmoment aanmelden via FUNDA. GELIEVE NIET TE BELLEN MAAR EEN AANVRAAG TE DOEN VIA FUNDA OF ONZE EIGEN WEBSITE!!
Bieden vanaf € 278.000,= k.k. De gestelde prijs betreft een bieden vanaf prijs. Biedingen vanaf € 278.000.,= k.k. zullen door verkopers in overweging worden genomen.
Indeling:
Begane grond
Je komt binnen in de hal en hier heb je toegang tot de werkkamer, deze is ook via een deur direct vanaf buiten te bereiken. In de hal bevindt zich de toiletruimte en de meterkast. De woonkamer is erg licht door schuifpui aan de achterzijde en heeft uitzicht op de prachtige tuin met veel privacy. In de keuken ligt leisteen op de vloer en de gehele begane grond is voorzien van een houten vloer en er is een sfeervolle houtkachel. Aan de voorzijde van de woning bevindt zich de open keuken in L-opstelling. Deze heeft natuurlijke lichtinval door de raampartij aan de voorzijde. De keuken is voorzien van een granito aanrechtblad, inbouwoven, elektrische kookplaat, afzuigkap, koel/vriescombinatie en vaatwasser. Vanuit de woonkamer kom je via de kunststof schuifpui in de groene achtertuin. De trappen zijn recent voorzien van kunststof in houtmotief.
Eerste verdieping
De eerste verdieping beschikt over 4 slaapkamers en een badkamer. Over de hele breedte is een dakkapel geplaatst waardoor de slaapkamers aan de tuinzijde extra ruim zijn. Op de gehele verdieping ligt een Merbauvloer. De badkamer is in 2018 compleet gerenoveerd en voorzien van vloerverwarming en kunststof verlaagd plafond en is in lichte kleurstelling uitgevoerd. Een inloopdouche met regendouche, toilet en wastafelmeubel maken de ruimte compleet.
Tweede verdieping
Zolder met overloop en de 5e slaapkamer met zijraam en extra dakraam. Op de overloop is een ruimte met aansluiting voor de wasmachine en de droger en is verder in gebruik als bergruimte. Via de deur kom je in de ruime lichte slaapkamer. Deze verdieping is netjes afgewerkt en voorzien van laminaatvloer.
Tuin, berging en garage
Vanuit de woonkamer stap je via de schuifpui in de zonnige achtertuin welke is voorzien van betegeld terras, gazon en mooie borders. De achtertuin biedt veel privacy en is gelegen op het zuiden. Er is een elektrisch zonnescherm zodat je ook een lekker plekje in de schaduw kunt vinden. Achter in de tuin staat een kunststof tuinhuis met elektra en verlichting en er is een achterom via een poort. Aan de voorzijde van de woning ligt een betegelde tuin met de garage, deze is nu opgedeeld, deels berging en deels kantoor maar kan indien gewenst weer volledig als garage worden gebruikt.
- Ruime, lichte hoekwoning.
- Ligging achterzijde op het zuiden.
- Badkamer recent 2018 met vloerverwarming en kunststof verlaagd plafond met inbouwspots.
- Nette keuken voorzien van handige carrousel, hoekkast en granito aanrechtblad.
- Grote elektrische kookplaat en brede afzuigkap met kanaal naar buiten.
- Kunststof schuifpui
- Dakkapel over gehele breedte woning
- Kunststof raam zijgevel t.b.v. badkamer
- Volledig kunststof tuinhuis met elektra en verlichting
- Stadsverwarming
- Design radiator in huiskamer
- Voorbereiding voor radiator in keuken.
- Ruime zolder met zijraam en extra dakraam
- Stenen verhoging wasmachine / droger
- Houtkachel
- Elektrisch zonnescherm
- 9 zonnepanelen 2020 eigendom
- Opgedeelde inpandige garage, deels berging deels kantoorruimte.
- Garagedeur geïsoleerd.
- Trappen recent bekleed kunststof met houtmotief
- De woning is binnen recent voorzien van nieuw wand en plafond schilderwerk.
- Rustige buurt
- Dichtbij A6
- Speeltuin in de buurt en veel groen
- Dichtbij scholen en supermarkt.
- Hout / beton schutting deels 2015 deels 2020 voorzien van poort aan de straatzijde.
- bouwjaar 1988
- energielabel B
- woonoppervlakte: 126,4m2
- perceel oppervlakte: 173m2
- oplevering: begin november 2021
- notaris keuze koper, Lelystad
Nieuwsgierig? Maak dan een persoonlijke afspraak en kom langs voor een bezichtiging!
Hoe te bezichtigen:
- uitsluitend volgens de RIVM-richtlijnen.
- maximaal met 2 personen naar de afspraak te komen.
- aparte persoonlijke afspraken.
- minimaal anderhalve meter afstand houden.
- niets aanraken, alleen kijken.
- mogelijke ziekteverschijnselen? Dan geen afspraak.
Disclaimer:
Deze informatie is met zorg samengesteld en wordt u vrijblijvend aangeboden.
Over de juistheid en/of volledigheid ervan kunnen wij echter geen aansprakelijkheid aanvaarden.
+ Lees meer
- Lees minder
Bouw: {{ product.build_year }}
Bouw: {{ product.build_period.start }} - {{ product.build_period.end }}
Woonhuis
, Eengezinswoning
{{ product.rooms }} Kamers
{{ product.bedrooms }} Slaapkamers
Woonruimte: {{ product.living_space }} m²
Perceel: {{ product.plot_surface }} m²
Energielabel: {{ product.energy_class }}
Energie index: {{ product.energy_index }}
Kenmerken
{{ field.label }}
{{ field.value }}
+ Lees meer
{{ field.label }}
{{ field.value }}
- Lees minder
{{ product.company.name }}
Contact opnemen
{{ product.company.phone.replace('-', ' ').substr(0, 7) }}...
{{ product.company.phone.replace('-', ' ') }}
Delen:
Foto’s van Neckarstraat 27 8226 LL Lelystad
Datum






















































