Photo’s
{{ product.images.length }}
Floorplan
{{ product.plans.length }}
360° photo’s {{ product.panoramas.length }}
Video’s {{ product.videos.length }}
Maps
All media
House for sale Claerbeek 63 Lelystad
€ 368.000 buyer cost
Sold
Description
Wij willen je vragen om bij voorkeur DIGITAAL (via Funda of onze eigen website) een bezichtiging aan te vragen. Vervolgens nemen wij contact op om een afspraak in te plannen. Dank voor de medewerking.
AB wonen makelaars biedt aan: Claerbeek 63 te Lelystad.
Hier woon je op één van de mooiste locaties van Lelystad, het Markermeer en 't gezellige Batavia Haven zijn om de hoek!
Deze markante trapgevelwoning is gebouwd in 2008, telt 2 slaapkamers en is volledig instapklaar. Je hebt een eigen tuin , gemeenschappelijke tuin en een parkeerplek in de parkeergarage. De woonoppervlakte is totaal 129,7m2 en is gelegen op een perceel van 123m2 eigen grond. De woning ligt op loopafstand van het Markermeer, Batavia Haven en Batavia Stad. Het centrum van Lelystad is met de auto te bereiken en per fiets ongeveer 20 minuten, de uitvalsweg naar de A6 richting Almere/Amsterdam en de dijk naar Enkhuizen/Noord-Holland zijn vlakbij.
''Nu bieden vanaf € 368.000,- k.k. De gestelde vraagprijs betreft een 'bieden vanaf prijs''. Biedingen vanaf € 368.000,- k.k zullen door verkoper in behandeling genomen worden''.
Wonen op een unieke locatie vlakbij water en stad? Hier kan het!
Indeling:
Begane grond
Je komt binnen in de hal, hier is de meterkast, het toilet en de trapopgang naar boven. De woonkamer is licht door de erker aan de voorzijde en de openslaande deuren aan de achterzijde. De gehele verdieping is voorzien van plavuizen met vloerverwarming. Het plafond is verlaagd en voorzien van spotjes. In de erker is voldoende ruimte voor het plaatsen van de eettafel.
De keuken is geplaatst in een rechte opstelling en voorzien van diverse inbouwapparatuur zoals een 5-pits gaskookplaat met wokbrander, afzuigkap, magnetron, oven, vaatwasser, een en een koel/vriescombinatie. De keuken is licht van kleur.
Eerste verdieping
De eerste verdieping beschikt over 2 ruime slaapkamers en de badkamer. Aan de achterzijde ligt de grootste slaapkamer over de gehele breedte van de woning er is een kastenwand als room divider dit maakt deze kamer een heerlijk masterbedroom. Aan de voorzijde van de woning tref je nog een ruime slaapkamer met grote raampartij, een heerlijke lichte ruimte. De gehele verdieping is voorzien van parket. In het midden van de verdieping is de badkamer.
De badkamer is volledig betegeld met lichte tegels en heeft een luxe uitstraling. De badkamer is voorzien van een ligbad, inloopdouche, toilet en wastafelmeubel.
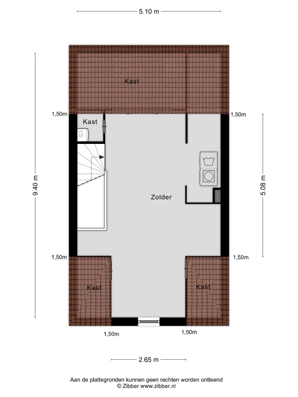
Tweede verdieping
Via een vaste trap bereik je de open zolder verdieping, een mooie ruimte die voor diverse doeleinden kan worden gebruikt, bijvoorbeeld als een extra slaapkamer of als hobby/werkkamer. Achter de schotten is voldoende bergruimte. De cv-ketel (eigendom) en wasmachine aansluiting zitten tevens op deze verdieping. De gehele verdieping is voorzien van een laminaatvloer.
Tuin
De tuin ligt op het noordwesten, een echte stadstuin, heerlijk beschut en met voldoende plek voor een loungeset. Achter in de tuin is een berging, handig voor fietsen en tuingereedschap. Daarnaast is er een gemeenschappelijke tuin waar alle bewoners toegang tot hebben. Parkeren kan in de parkeergarage via de VVE zijn de kosten hiervoor € 11,82 per maand.
Bijzonderheden:
- bouwjaar 2008
- woonoppervlakte 129,7m2
- perceeloppervlakte 123m2
- energielabel A
- tuin op het noordwesten
- fijne buurt en bewoners
- autoluwe straat
- parkeerplek (€ 11,84 per maand)
- gezamenlijke binnentuin
- oplevering: kan spoedig
- notaris keuze koper, Lelystad
Disclaimer
Deze informatie is met zorg samengesteld en wordt u vrijblijvend aangeboden. Over de juistheid en/of volledigheid ervan kunnen wij echter geen aansprakelijkheid aanvaarden.
+ Read more
- Read less
Construction: {{ product.build_year }}
Construction: {{ product.build_period.start }} - {{ product.build_period.end }}
House
, Single-family house
{{ product.rooms }} rooms
{{ product.bedrooms }} bedrooms
Living space: {{ product.living_space }} m²
Plot: {{ product.plot_surface }} m²
Energy class: {{ product.energy_class }}
Energy index: {{ product.energy_index }}
Characteristics
{{ field.label }}
{{ field.value }}
+ Read more
{{ field.label }}
{{ field.value }}
- Read less
{{ product.company.name }}
Contact us
{{ product.company.phone.replace('-', ' ').substr(0, 7) }}...
{{ product.company.phone.replace('-', ' ') }}
Share:
Photo’s of Claerbeek 63 8242 KG Lelystad
Date


































