Photo’s
{{ product.images.length }}
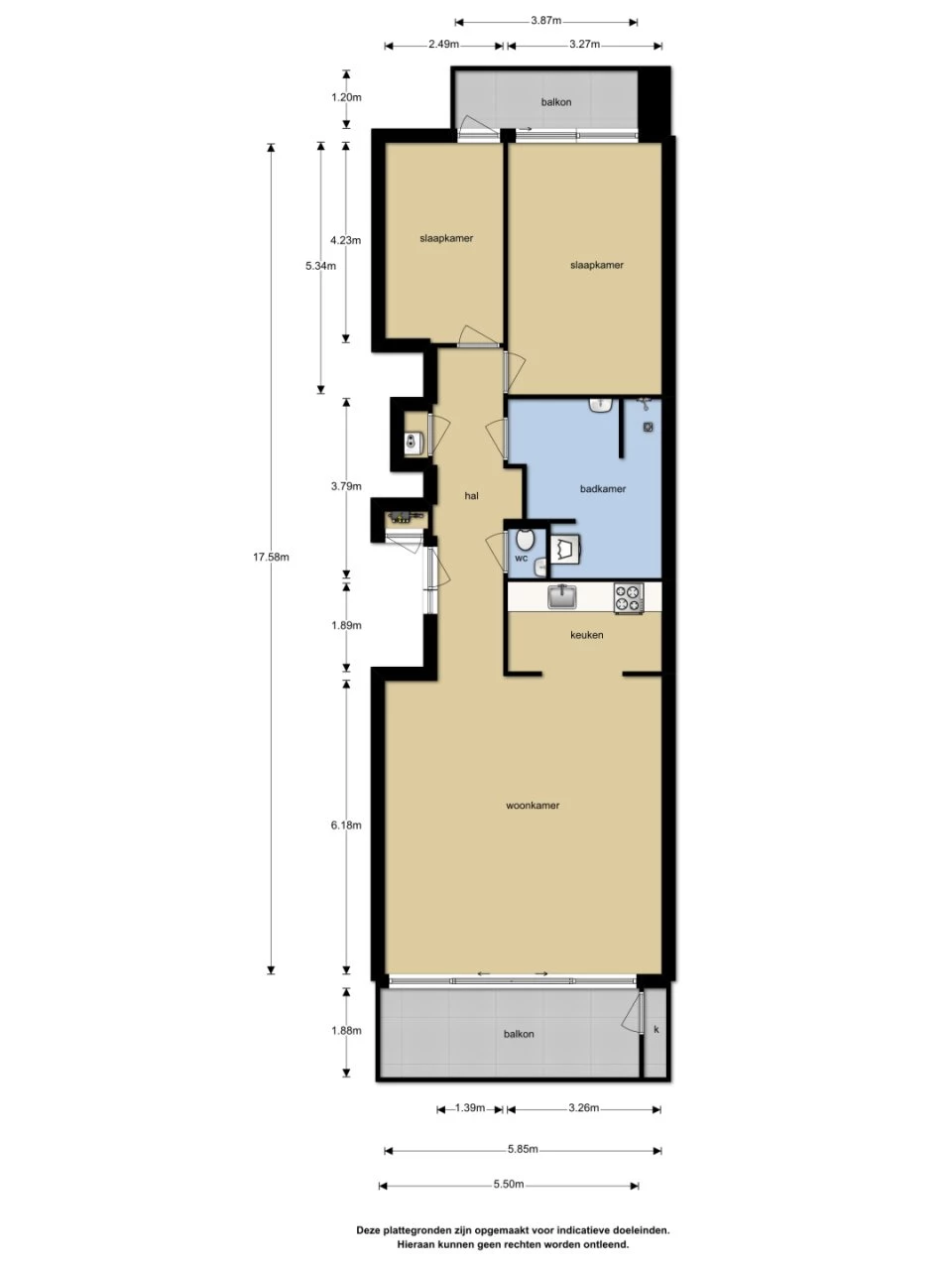
Floorplan
{{ product.plans.length }}
360° photo’s {{ product.panoramas.length }}
Video’s {{ product.videos.length }}
Maps
All media
Apartment for sale Zilverparkkade 93 Lelystad
€ 304.000 buyer cost
Sold
Description
AB wonen makelaars biedt aan: Zilverparkkade 93 te Lelystad. In het hart van Lelystad staat dit zeer leuke appartement.
Wanneer u op zoek bent naar een ruim opgezet appartement met een zonnig balkon en de mogelijkheid voor een eigen parkeerplaats in het centrum van Lelystad, dan is dit keurig afgewerkte appartement iets voor u!
Wonen aan de Zilverparkkade is wonen in hartje Lelystad. Genietend van het stadsleven met het NS station om de hoek. Ook beschikt u als bewoner van de Zilverparkkade over alle denkbare stadse voorzieningen, bestaande uit een groot aantal winkels en horecagelegenheden. Het ziekenhuis is om de hoek. Behalve de stadse gemakken, biedt de omliggende natuur rust en ruimte om aan de drukte van alle dag te ontsnappen. Binnen tien minuten fietsen, staat u midden in de natuur.
Het appartement is gelegen op de vijfde verdieping en heeft een op het zuiden gerichte royale woonkamer met een dubbele schuifpui naar het balkon. Vanuit de woonkamer heeft u een fantastisch vrij uitzicht over het Zilverpark.
Op iedere verdieping bevinden zich twee appartementen. Op de begane grond is de centrale entree gelegen met toegang tot de berging en de achteringang welke uitkomt bij de afgesloten parkeergarage waar uw eigen parkeerplaats is gelegen.
Indeling appartement:
Entree, hal met toilet, bergkast met cv-ketel. Aan de achterzijde zijn twee slaapkamers gelegen met een (tweede)balkon. De badkamer is voorzien van een wastafel, inloopdouche en de wasmachine aansluiting. De grote woonkamer met dubbele schuifpui geeft toegang tot het balkon op het zuiden. Er is een nette open keuken met inbouwapparatuur.
Bijzonderheden:
- In de zomer blijft het appartement heerlijk koel doordat de zon recht boven het dak staat en niet naar binnen schijnt terwijl winters de laagstaande zon het appartement juist verwarmd waardoor de verwarming vrijwel de hele winter niet aan hoeft.
- Leuk appartement met 2 slaapkamers, gelegen op de 5e verdieping.
- Centraal NS station op 2 minuten loopafstand.
- Woonoppervlakte: 97 m2
- Bouwjaar: 2005
- Privacy, rust en vrijheid en dichtbijt centrum van de stad met restaurants, terrassen, winkels etc.
- Mogelijkheid eigen parkeerplaats in afgesloten gedeelte van de Zilverparkgarage (apart te koop voor € 20.000,-)
- Privé gelegen balkon op het zuiden met prachtig uitzicht.
- Servicekosten V.v.E. ca. € 175,-- p.m.
- Aanvaarding: mogelijkheid op korte termijn
Hoe te bezichtigen:
- uitsluitend volgens de RIVM-richtlijnen
- aparte persoonlijke afspraken
- minimaal anderhalve meter afstand houden
- niets aanraken, alleen kijken
- mogelijke ziekteverschijnselen? Dan geen afspraak
Disclaimer
Deze informatie is met zorg samengesteld en wordt u vrijblijvend aangeboden.
Over de juistheid en/of volledigheid ervan kunnen wij echter geen aansprakelijkheid aanvaarden.
Wanneer u op zoek bent naar een ruim opgezet appartement met een zonnig balkon en de mogelijkheid voor een eigen parkeerplaats in het centrum van Lelystad, dan is dit keurig afgewerkte appartement iets voor u!
Wonen aan de Zilverparkkade is wonen in hartje Lelystad. Genietend van het stadsleven met het NS station om de hoek. Ook beschikt u als bewoner van de Zilverparkkade over alle denkbare stadse voorzieningen, bestaande uit een groot aantal winkels en horecagelegenheden. Het ziekenhuis is om de hoek. Behalve de stadse gemakken, biedt de omliggende natuur rust en ruimte om aan de drukte van alle dag te ontsnappen. Binnen tien minuten fietsen, staat u midden in de natuur.
Het appartement is gelegen op de vijfde verdieping en heeft een op het zuiden gerichte royale woonkamer met een dubbele schuifpui naar het balkon. Vanuit de woonkamer heeft u een fantastisch vrij uitzicht over het Zilverpark.
Op iedere verdieping bevinden zich twee appartementen. Op de begane grond is de centrale entree gelegen met toegang tot de berging en de achteringang welke uitkomt bij de afgesloten parkeergarage waar uw eigen parkeerplaats is gelegen.
Indeling appartement:
Entree, hal met toilet, bergkast met cv-ketel. Aan de achterzijde zijn twee slaapkamers gelegen met een (tweede)balkon. De badkamer is voorzien van een wastafel, inloopdouche en de wasmachine aansluiting. De grote woonkamer met dubbele schuifpui geeft toegang tot het balkon op het zuiden. Er is een nette open keuken met inbouwapparatuur.
Bijzonderheden:
- In de zomer blijft het appartement heerlijk koel doordat de zon recht boven het dak staat en niet naar binnen schijnt terwijl winters de laagstaande zon het appartement juist verwarmd waardoor de verwarming vrijwel de hele winter niet aan hoeft.
- Leuk appartement met 2 slaapkamers, gelegen op de 5e verdieping.
- Centraal NS station op 2 minuten loopafstand.
- Woonoppervlakte: 97 m2
- Bouwjaar: 2005
- Privacy, rust en vrijheid en dichtbijt centrum van de stad met restaurants, terrassen, winkels etc.
- Mogelijkheid eigen parkeerplaats in afgesloten gedeelte van de Zilverparkgarage (apart te koop voor € 20.000,-)
- Privé gelegen balkon op het zuiden met prachtig uitzicht.
- Servicekosten V.v.E. ca. € 175,-- p.m.
- Aanvaarding: mogelijkheid op korte termijn
Hoe te bezichtigen:
- uitsluitend volgens de RIVM-richtlijnen
- aparte persoonlijke afspraken
- minimaal anderhalve meter afstand houden
- niets aanraken, alleen kijken
- mogelijke ziekteverschijnselen? Dan geen afspraak
Disclaimer
Deze informatie is met zorg samengesteld en wordt u vrijblijvend aangeboden.
Over de juistheid en/of volledigheid ervan kunnen wij echter geen aansprakelijkheid aanvaarden.
+ Read more
- Read less
Construction: {{ product.build_year }}
Construction: {{ product.build_period.start }} - {{ product.build_period.end }}
Apartment
, Mezzanine
{{ product.rooms }} rooms
{{ product.bedrooms }} bedrooms
Living space: {{ product.living_space }} m²
Plot: {{ product.plot_surface }} m²
Energy class: {{ product.energy_class }}
Energy index: {{ product.energy_index }}
Characteristics
{{ field.label }}
{{ field.value }}
+ Read more
{{ field.label }}
{{ field.value }}
- Read less
{{ product.company.name }}
Contact us
{{ product.company.phone.replace('-', ' ').substr(0, 7) }}...
{{ product.company.phone.replace('-', ' ') }}
Share:
Photo’s of Zilverparkkade 93 8232 WK Lelystad
Date


















